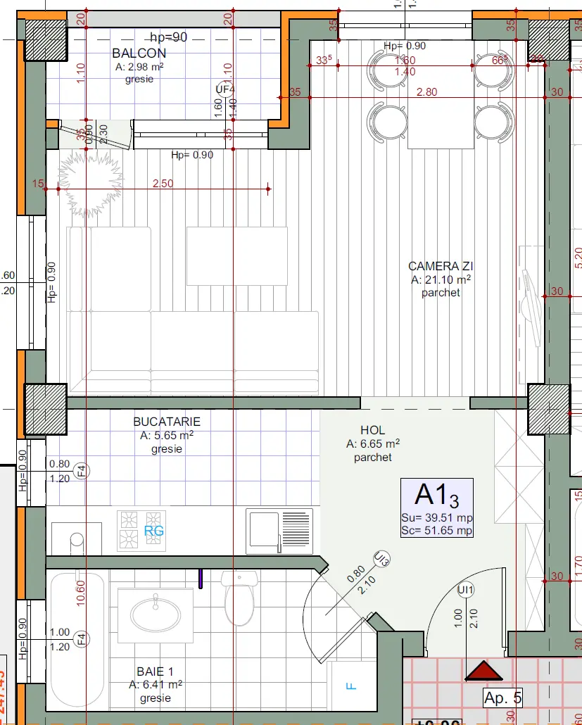
Apartment – Layout 1
Status
Available
Project type
Detached studio apartment
Apartment area
39,51 m²
Completion
On request
Price
Contact us

Apartment Description
The apartment with the layout 1 in Block D, Calea Moților 170, is ideal for an urban, efficient and comfortable lifestyle. With a usable area of 39.51 m², the home is practically laid out: a generous living room with open-space kitchen, a bright bedroom, a fully equipped bathroom, an entrance hall and a dedicated storage area.
Access to the 2.98 m² balcony from the living area adds extra natural light and a sense of openness. Located on the ground floor, the apartment is perfectly suited to the modern needs of a single person or a couple looking for a well-organised, low-maintenance home.
Details
- Usable area: 39,51 m²
- Balcony: 2.98 m²
- Layout: Living room, kitchen, bathroom, hall, storage space, balcony
- Construction status: Under construction
- Completion: On request
Included features & benefits
Generous entrance hall
Space that allows for a coat rack or wardrobe for clothes and shoes.
Bright apartment
Large windows in every room, creating a pleasant and airy atmosphere.
Open balcony
Direct access to the outside from the living area, perfect for relaxing.
Spacious bathroom
Optimal space for a fully fitted layout — bathtub or shower, sink and toilet.
Practical kitchen
Efficiently positioned, with generous room for furniture and appliances.
Separate storage space
A dedicated storage room, ideal for organization and functionality.
Efficient layout
Living room with open kitchen, with well-defined and functional areas.
Generous living room
21.10 m² for relaxation, sleeping or multi-functional use.
