Maximo Properties

Blandiana 29

Status

Sold

Project type

Single-family home

Land area

450 m²

Completion

2026

Price

Contact us

Home description

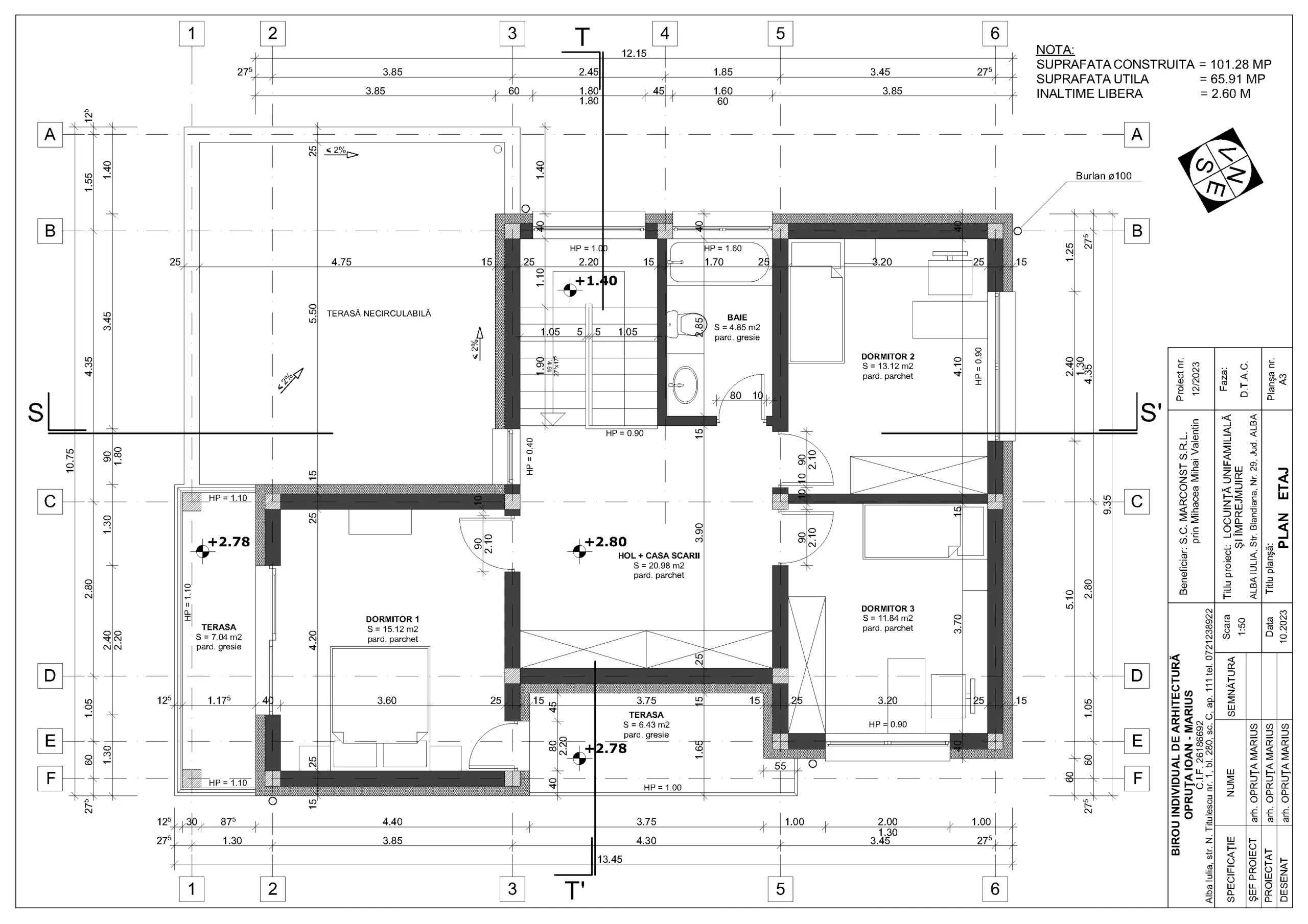
Blandiana 29 is a spacious home, carefully planned down to the smallest detail for a modern, efficient lifestyle. Its 120 m² of usable space are harmoniously divided between the day area and the night area, offering all the comfort you need.

The ground floor includes a generous living room, kitchen, and powder room, creating an airy, welcoming day space. The first floor is laid out with three bedrooms, two bathrooms, and a walk-in closet—ideal for an active family.

The house features a 12.92 m² terrace and a 6 m² balcony, while the 450 m² yard gives you the freedom to arrange it exactly as you wish. Two parking spaces are provided right in front of the house. Handover is planned for October 2025.

Details

Included features & benefits

Generous area

450 m² plot with a 12.92 m² terrace and a 6 m² balcony.

Landscaped yard

Ample space, ready to be tailored to your taste: garden, play area, or green zone.

Underfloor heating

Superior thermal comfort throughout the home, with a gas-fired boiler.

Included parking

Two private parking spaces in front of the house.

Fully equipped bathrooms

Each bathroom is finished with quality materials and ready to use.

Premium interior finishes

Wood flooring, tile, and carefully selected details—customizable on request.

Separate walk-in closet

Practical, well-organized storage space.

Balanced layout

Day area on the ground floor; three bedrooms and two bathrooms upstairs.

Location

ADDRESS
Alba Iulia, str. Blandiana, nr. 29, 510324
What’s nearby?

Alba Carolina Citadel
4.3 km

Smurfs World
800 m

Dr. Ion Vlad Dendrological Park
3.6 km

1 December 1918 Primary School 1918
800 m

PENNY Calea Moților 215
500 m

Apulum Kids – Playground
700 m

Kaufland, Calea Moților 120
900 m

Alba Iulia Olympic Pool
3.5 km

Creștem Frumos Kindergarten
600 m

Want more details?

Tell us what you’re interested in.

    Suntem încântați să luăm legătura cu tine! Câmpurile obligatorii sunt marcate cu *